网站首页 > 案例展示

【月亮湾】

点击次数:208  更新时间:2026-01-30

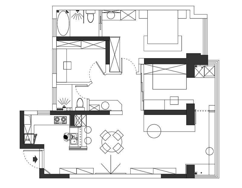
建筑面积:104㎡

设计风格:中古混搭风

设计机构:桃弥空间设计

月亮湾二期-9.jpg

月亮湾二期-4.jpg月亮湾二期-8.jpg

月亮湾二期-13.jpg月亮湾二期-12.jpg月亮湾二期-14.jpg月亮湾二期-5.jpg


月亮湾二期-1.jpg月亮湾二期-3.jpg

月亮湾二期-6.jpg


联系我们

24小时咨询热线 18627061616

工厂地址:
武汉市武昌区和平大道三角路绿地铭创大厦 4 楼407 室

Copyright © 2014-2021 武汉桃弥室内装饰设计有限公司 All Right Reserved. 备案号:鄂ICP备2021008472号-1 技术支持:易畅客营销系统